площадью 50,00 м2, по цене 2950000 по адресу Промышленное шоссе - 52стр1

Цена 2 950 000 р.
Адрес Промышленное шоссе, 52стр1
Площадь помещения 50 м2
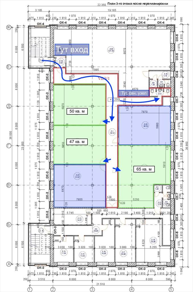
Арт. 86659031. Группа компаний "Метро" предлагает в покупку офисные помещения на Промышленной улице, рядом с Дзержинским районом. Обратите внимание, что у помещений стоимость отличается в зависимости от окон: полноценные чуть дороже. Если нужен ремонт, то можем дать подрядчика для чистовой отделки (стены оштукатурены, окрашены; пол - плитка; потолок - армстронг; розетки) Офисы находятся в удобной промышленной зоне, прямо напротив автосалона Агат (оф. дилер) . На фото офисы на третьем этаже: 47,49 и 64 кв. м. Еще есть на пятом этаже 30 кв. м. 80% помещений в здании уже реализована, успейте выбрать свое. Параметры: -Автономное газовое отопление - низкие коммунальные платежи. -Цена с НДС, можно взять к вычету. -Комфортный съезд с трассы и парковка, в т.ч. для клиентов. ------------------------------------------------- ------------- Приходите посмотреть варианты, вы точно сможете выбрать офис по душе. ------------------------------------------------- ------------- Без комиссии для покупателя! -------------------------------------------------- ------------ 1. Больше информации по телефону и в форме чата. 2. Для иногородних клиентов оперативно покажем объект по видеосвязи. 3. Приглашаем посредников к сотрудничеству на выгодных условиях. 4. Если этот объект не понравился по фотографиям и описанию - обращайтесь, предложим альтернативу. 5. Фиксируем звонки в режиме 24/7, для Вашего удобства работает контакт-центр.
Объявление № 23459424
Дата подачи:
22 октября 2025 г. 1:50
Дата обновления:
22 октября 2025 г. 0:00
Просмотров 15 Хотите продать быстрее?

Продавец
Ершов Иван
Показать номер телефона
Пожаловаться
Комментарии:
Добавить